Cohousing 3C - ARANDA
Número de viviendas: 60-80 unidades privadas de 40 m²
Espacios comunes: restaurante, lavandería, sala multiusos, jardín, talleres, etc.
Estado actual: reserva de plazas abierta
Modelo jurídico: cooperativa con derecho de uso
Precio: 130.000€
Plazos estimado de entrega: 18 meses
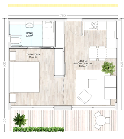
Espacios Privados: tu hogar, a tu medida
Cada apartamento de 40m² ofrece confort, privacidad y accesibilidad total:
Dormitorio, cocina equipada, salón luminoso, baño adaptado
Terraza con vistas a los jardines compartidos o al picadero del centro hípico
Diseño sin barreras arquitectónicas: suelos antideslizantes, puertas amplias


Zonas Comunes: fomentar la convivencia
Cocina y comedor comunitario: compartir comidas y momentos sin obligación
Sala multiusos: ideal para talleres, cine, reuniones y celebraciones
Gimnasio ligero y sala de fisioterapia para cuidar el cuerpo
Biblioteca–salón de lectura como rincón sereno
Huerto ecológico y jardines para pasear, meditar o cultivar plantas
Lavandería compartida con equipamiento eficiente
Actividades y Servicios: bienestar integral
Cafetería-restaurante abierto a residentes y visitantes con cocina saludable y productos locales
Club social con programación de charlas, clases de yoga, cinefórum y talleres
Centro hípico: clases de equitación, paseos a caballo, terapias ecuestres y actividades al aire libre
Servicios a la carta: fisioterapia, peluquería, limpieza y asistencia personalizada




Hogares personalizables y pensados para una vida activa e independiente.
Arquitectura que facilita el encuentro sin invadir la privacidad.
Espacios optimizados para adaptarse a cada ritmo de vida: tranquilo, activo o social
Ubicación Ideal
¿Por qué Aranda de Duero?
Entorno natural y tranquilo: vivo entorno entre viñedos de la Ribera del Duero, aire puro y vida pausada, ideal para bienestar físico y mental
Clima continental: estaciones definidas, inviernos frescos y veranos soleados, buen clima para actividades al aire libre y para condiciones articulares
Excelente acceso: buena conexión por carretera (N‑122), autobuses regulares a Burgos, Valladolid y Madrid.
Coste de vida asequible comparado con grandes ciudades
Proximidad urbana: Aranda de Duero, Burgos (a ≈50 min); oferta cultural, gastronómica y comercial local
Seguridad y comunidad: entorno cercano y cohesionado, ideal para convivir con tranquilidad
Dirección
Carretera BU-925 Salas de los Infantes, Km 4,5
09400, Aranda de Duero. Burgos
Servicios de salud:
Centro de Salud Norte y Centro de Salud Sur de Aranda de Duero: atención primaria cercana con médicos de familia, enfermería, pediatría y programas de salud preventiva.
Hospital Santos Reyes: hospital comarcal ubicado en Aranda con servicios de urgencias 24h, medicina interna, traumatología, cirugía general, ginecología, oftalmología, radiología y laboratorio. Próxima inauguración de un nuevo hospital.
Conexión con hospitales de referencia en Burgos para especialidades complejas o tratamientos de alta complejidad (Complejo Asistencial Universitario de Burgos).
Clínicas privadas en la ciudad: servicios de fisioterapia, salud dental, podología, psicología y ópticas.
Farmacias y atención domiciliaria disponibles en toda la zona urbana.
Contacto


Estamos aquí para ayudarte a encontrar tu hogar colaborativo ideal. ¡Contáctanos para más información!
Colaborar
Viviendas colaborativas para mayores con autonomía.
+(34) 652 813 570
© 2025. All rights reserved.
